

































St Lawrence: Master Planning + Architecture + Interiors + Construction Management
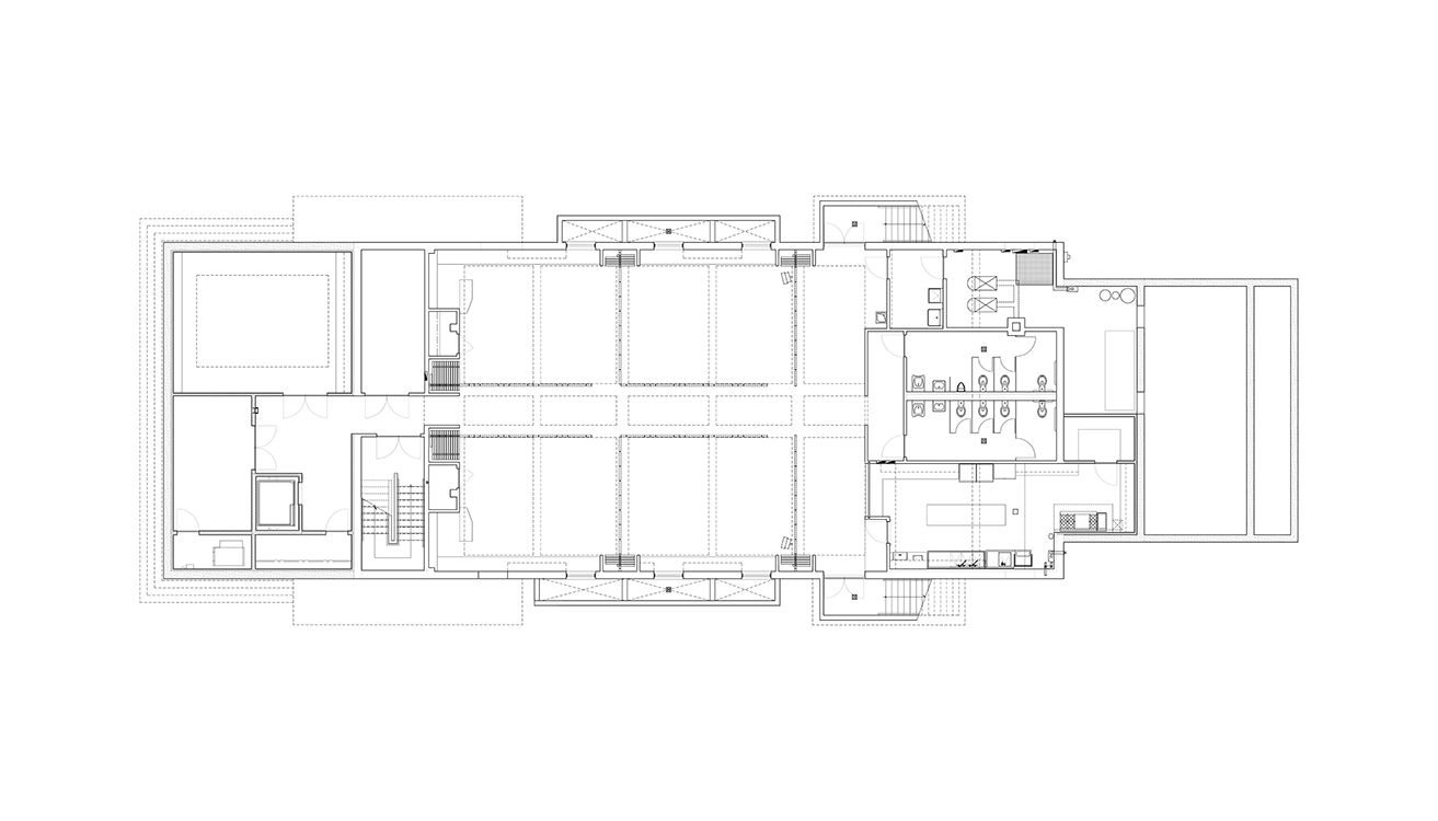
A multi-phase campus expansion and modernization of a 1950s brick church kit building for a small rural parish. The church building program included enlarged Vestibule and Choir Loft with space for a new Cry Room, Interior Staircase, Library and Conference Rooms to the front, along with larger commercial Kitchen, Storage and Office to the rear. Renovations included all a complete re-roofing, windows, side entrances, commercial kitchen upgrade, bathrooms and reconfiguration of an existing open basement with modern moveable partitions to accomodate the alternate uses of a large parish Social Hall and a four-room Sunday School. MEP updates included new Met-Ed 3-phase electric utility service, tandem Viessman LP powered condensing boilers with infloor radiant heating paired with a complete Mitsubishi Citi-Multi Heat-Pump System, and new Municipal Water service, all new plumbing and water softening systems. Planned site improvement included reconfigured and expanded parking and driveways, a parish Pavilion, and new Prayer Garden. Multiple Zoning Variance and Planning Board approvals, as well as and final Land Planning approvals were obtained.
Structural Engineer: Theta Consulting
Mechanical Engineer: Pressman & Associates
Soils Engineer: DelVal Soil & Environmental Consultants
Civil Engineer: Ombalski Consulting Engineers
